CHIARETTO   FERCO    FRANCE NEOCLAIR     FRANCE FESTONNAGE                FRANCE FESTONNAGE    FRANCE  NEOCLAIR  FERCO   CHIARETTO

 VACHETTE CHIARETTO     SERRURERIE HERBLAY - VITRERIE HERBLAY - SERRURERIE HERBLAY - VITRERIE HERBLAY  CHIARETTO VACHETTE

 CHIARETTO   FRANCE NEOCLAIR - France Néoclair  - FRANCE NEOCLAIR - France Néoclair - CHIARETTO     SERRURERIE HERBLAY - VITRERIE HERBLAY    CHIARETTO

 

SERRURERIE -VITRERIE - FESTONNAGE

CHIARETTO DOMINIQUE   Protection contre le vol

19 Avenue, du chemin de fer 95220 HERBLAY   

Tel: 01.39.78.94.18      Portable: 06.88.10.97.21        Tel Free: 09 52 30 94 18

 

Envois de devis par email

 Retour au Menu    

 

Email:                                       Serrures à larder multipoints 5000 TN1/FN1    

 
 

Vente de toutes  pièces détachées pour serrure VACHETTE  Originales,  serrures, Gâches

 
 

Ancien Modèle

Gamme 5000

Nouveau modèle

 TRILOCK

5000 SPN1 T204

Descriptif :
• 3 points latéraux
• Réversible
• Pour profilé européen A2P*
• Doit être installé avec la garniture A2P* blindée FLORENCE (vendue séparément)
• 3 pênes dormants
• PLAN CÔTES SIMILAIRE A LA VERSION NON A2P
Applications :
• Tous les articles ci-après doivent être montés ensemble pour garder l'agrément A2P
 
       
 

 

 

 

Les Gâche de serrure Vachette

Serrures à larder multipoints  10000 - 4 points  016 G

prix de vente 2017 119€ + 28€ de port

Plant

Descriptif

Jeux de gâches pour serrure et gâches désaxées de 1,5 mm
Réf. 016 D/G
- Bouts ronds
- 1 gâche droite médiane marquée 4984-05 ou gauche 4984-04
- 2 gâches haute et basse réversibles pour galets marquées 4984-06

Serrures à larder multipoints  10000 - 4 points  016 D

Plant

GACHE CENTRALE PR 10000 A DEFONCER 016MS DROITE 1-4984-05 DANS L'AXE MECHE DIAM24

GACHE CENTRALE PR 10000 A DEFONCER 016MS GAUCHE 1-4984-04 DANS L'AXE MECHE DIAM24

GACHE GALET PR 10000 A DEFONCER 016HBT16 1-4984-14 DEFONCER DANS L'AXE MECHE D24

  Serrure mécanique
à mortaiser
multipoints 10000

Gâche centrale  4984-01  -   4984- 04    -   4984-12   -  4984-14     4984-03

 

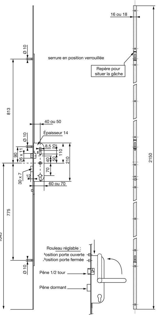
Crémone à larder à rouleau 10515

                 

existe en têtière de 16 ou 18 mm

 et axe 40 ou 50 mm

hauteur 2150 mm

 

réf:  4984 22

GACHE 516G  et 516 D pour 10500 bouts ronds 16x10.5

 

 6 en stock référence 4984-16 (GACHE 516G) prix ttc = 65.00 euros

 11 en stock référence 4984-06 (GACHE haute et basse réversible 516D et  516G) prix ttc = 25.00 euros

- gâche vachette 4984-14 = 85.00 euros (tarif 2018)
- gâche vachette 4984-22 = 119.50 euros (tarif 2018)
- gâche vachette 4984-23 = 119.50 euros (tarif 2018)
- gâche vachette 4984 A 31 = 119.50 euros (tarif 2018)
 sur commande délai 15 jours

 

 

gâche cassé on remplace 

 

D'autres modèles existent envoyez nous une photo de votre gâche ou serrure avec les dimensions

 

Ci-dessous   les modèles qui n'existes plus et qui n'ont pas été remplacé

référence de la gâche  4984-64 Vachette  cette  Gâche n'existe plus et n'a pas été remplacé

on peut la fabriquer en fer à l'identique ou presque (nous sommes serrurier par fraiseur) pour la somme de 175.00 euros ttc + port

 

Cette poignée

Crémone UNCMM à taraudage

Descriptif : • Crémone pour tringle intérieure


• Entraxe de fixation 112 mm
• Fixation intérieure ou extérieure
• Course 26 mm

Boîtier poli / Bouton chromé

 n'existe plus

depuis 10/2016

On peut la remplacer par celle ci en applique

 

 

 

 Retour au Menu                                                                             Email:                                                                   Conditions  générale de vente